Ouvintes:
Principais ouvintes:
play_arrow
FLUXMEDIA Música sem limites!
play_arrow
The Globalsessions with Paul Rudd - Episode 208 Paul Rudd
As obras do novo Complexo Funerário de São Marcos, em Castelo Branco, encontram-se a avançar a bom ritmo, estando prevista a criação de um espaço moderno, digno e funcional, destinado a apoiar as famílias nos momentos de despedida dos seus entes queridos.
Este novo equipamento municipal foi concebido para assegurar condições de conforto e respeito, respondendo às necessidades de diferentes religiões e crenças. Dessa forma, está a ser criado um espaço inclusivo, orientado para a diversidade cultural e espiritual da comunidade.
A primeira fase da empreitada já foi concretizada, com a demolição do antigo armazém existente no lote em frente à Capela de São Marcos. Encontra-se igualmente em curso a construção da nova Casa Mortuária, projetada pelo reconhecido arquiteto português Álvaro Siza Vieira, vencedor de vários prémios nacionais e internacionais.

A construção deste complexo vem dar resposta a uma necessidade antiga da cidade, uma vez que a Capela de São Marcos não tem, em determinadas situações, capacidade para acolher o número de velórios realizados. Assim, pretende-se colmatar essa lacuna, garantindo melhores condições às famílias e à comunidade.

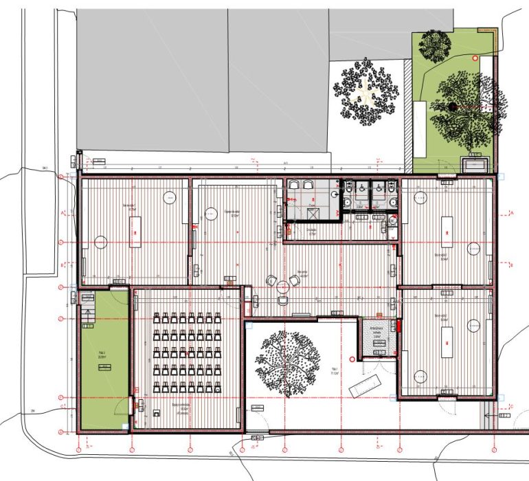
O novo edifício será composto por um único piso, com uma planta em forma de “U”, organizada em torno de um pátio central que articula três alas. A área total de construção ronda os 490 metros quadrados, aos quais se juntam três pátios ajardinados, com cerca de 144 metros quadrados.
A partir do pátio principal será feito o acesso ao átrio central de distribuição, prolongado por um espaço de estar aberto. Na ala nascente localizam-se as salas de vigília 2 e 3, enquanto a ala poente integra a sala de vigília 1 e um amplo espaço de celebração. A iluminação natural será assegurada através de aberturas para os pátios ajardinados. No núcleo central, estão previstos espaços de apoio, como copa, arrecadações e instalações sanitárias adaptadas a pessoas com mobilidade reduzida.
Recorde-se que o projeto foi lançado a concurso pela segunda vez, após o primeiro procedimento não ter recebido qualquer proposta. A empreitada foi adjudicada pelo valor de 947.640 euros, com um prazo de execução de um ano.
Esta obra é considerada estratégica para o Município de Castelo Branco, uma vez que permitirá dotar a cidade de instalações adequadas à realização de cerimónias fúnebres, assegurando dignidade, funcionalidade e respeito num momento de elevada carga emocional e social.



(Fonte: Nota de Imprensa da Câmara Municipal de Castelo Branco)
Escrito por P.Cordeiro
Álvaro Siza Vieira Câmara Municipal de Castelo Branco Casa Mortuária Castelo Branco Complexo Funerário de São Marcos equipamento municipal infraestruturas públicas obras em Castelo Branco património urbano
FLUX Hit Play – Só Hits, Sempre! Carrega play e sente o ritmo!
close
12:00 - 13:00
13:00 - 19:00
© 2026 FLUXMEDIA. Todos os direitos reservados.
Qualquer reprodução sem consentimento
é expressamente proibida.
Utilizamos cookies para melhorar a sua experiência no site, analisar o tráfego e ajustar conteúdos ao seu gosto. Pode aceitar todos ou gerir as suas preferências a qualquer momento.